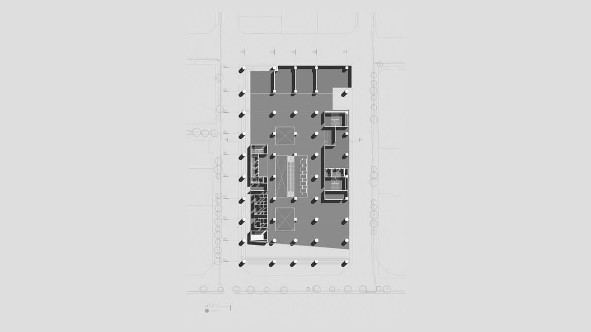
Keshavarz Blvd. Hotel See All Projects Type HospitalityLocation Iran - TehranDate 2017Status Phase 1 CompletedArea 89300 m2Client Parsian Group Previous Gas Competition Next Iransaray Hotel