Skip links

Alborz

See All Projects

Type

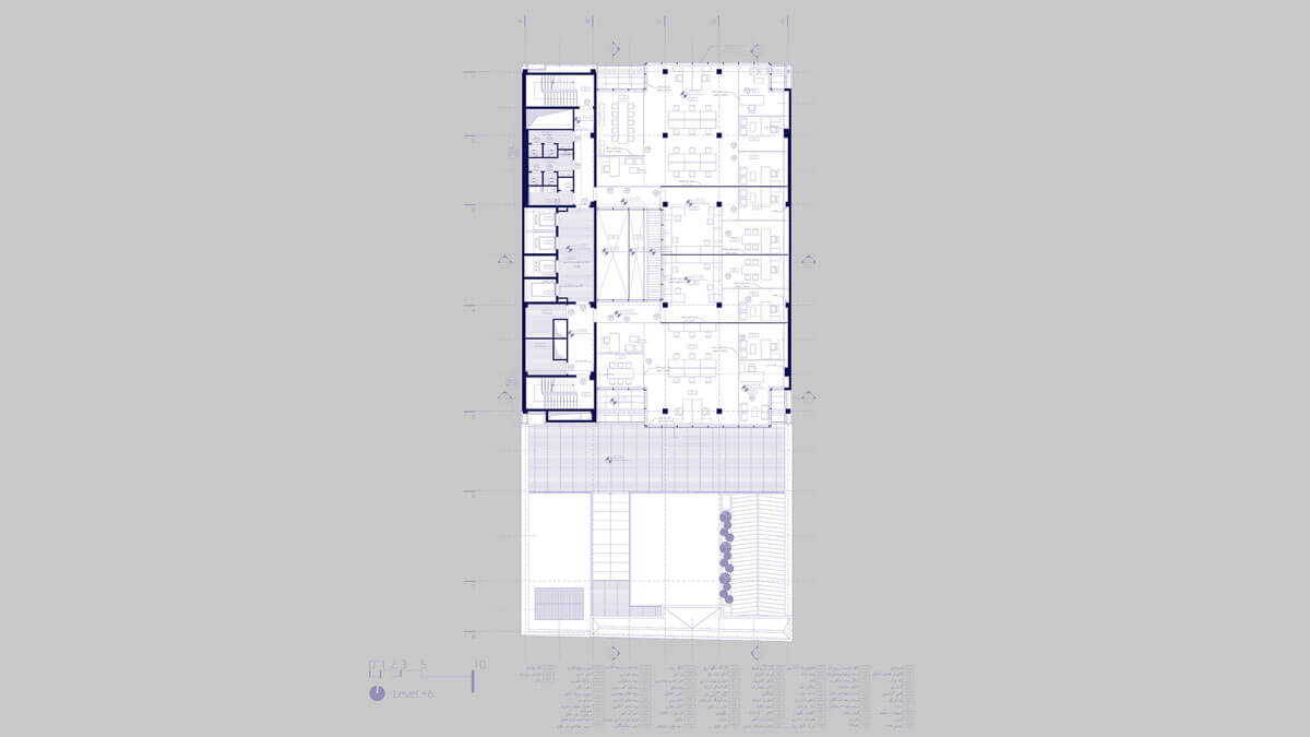
H.Q-Office

Location

Iran - Tehran

Date

2019

Status

Completed

Area

17500 m2

Client

Alborz Insurance Company

Explore
Drag